La personnalisation du plan d’engrais mélangés NPK est une demande croissante parmi les fabricants d’engrais en France, en Belgique et dans d’autres pays francophones. Les producteurs d’engrais NPK recherchent des solutions de fabrication flexibles capables de répondre à des besoins agricoles variés tout en optimisant le retour sur investissement et l’efficacité de production. aquí, YUSHUNXIN vous propose des systèmes de mélange NPK personnalisés pour 5 tiene 60 T/H, au sol ou en fosse, avec plusieurs matières premières, en application poudre ou granulés, etc.
Plan personnalisé d’engrais mélangés NPK de 5 tiene 60 T/H pour vous
L’un des aspects les plus importants lors du choix d’une ligne de production d’engrais NPK en vrac est la capacité de production. aquí, des plans de mélange en vrac personnalisés sont disponibles à petite ou à grande échelle.

Pour une ligne de fabrication de BB engrais de 5 t/h à petite échelle, elle utilise une machine de dosage statique, un mélangeur basique de granulés NPK et une ensacheuse à seau unique.

¿Qué es más?, pour les producteurs d’engrais composés NPK mélangés à grande échelle, le système de mélange à tambour rotatif est le meilleur choix. Sa capacité peut atteindre 60 t/h, garantissant une production commerciale d’engrais NPK rapide et continue pour répondre à la demande locale ou à l’exportation.
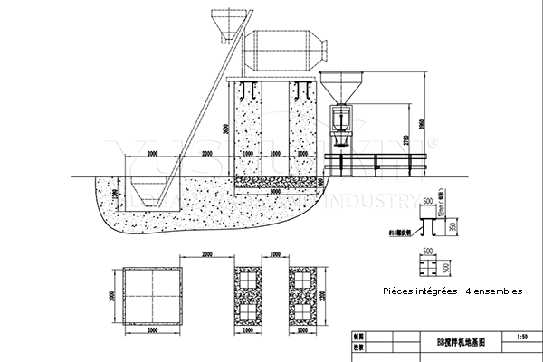
L’installation en fosse du système de mélange de granulés NPK est-elle faisable ?
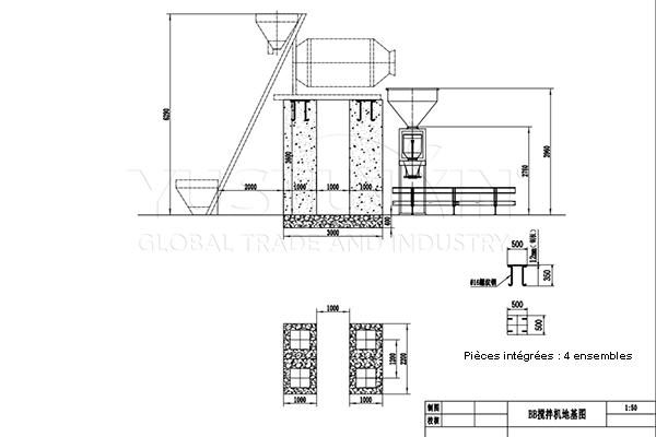
Le choix du mode d’installation du système de mélange d’engrais en vrac est également personnalisable. Vous pouvez opter pour une installation au sol ou travailler avec une fosse pour le stockage et le mélange des matières premières. Cela dépend de l’espace disponible et de vos préférences opérationnelles. La première option engendre des frais d’infrastructure plus faibles et un entretien plus facile. La seconde est plus adaptée à la production d’engrais NPK dans des espaces limités.



Peut-on traiter 5 types de matières premières avec la ligne de mélange d’engrais NPK ?
Por supuesto. En general, cela dépend directement du nombre de trémies des machines de dosage. por eso, YUSHUNXIN vous fournira un équipement de dosage NPK avec un nombre et une taille de trémies personnalisés. 3, 4 ou 5 compartiments (urée, DAP, MOP, KCL, etc.) selon le nombre d’ingrédients que vous souhaitez mélanger.



Existe-t-il un plan personnalisé d’engrais mélangés NPK pour la poudre ?
La réponse est oui. Il existe un plan professionnel de mélange de poudre pour vous. Celui-ci adopte un mélangeur horizontal à double arbre, qui mélange en continu les matières en poudre de manière homogène à grande échelle. Cela offre une grande polyvalence pour différents types de fabrication d’engrais NPK.



En conclusion, un plan personnalisé d’engrais mélangés NPK peut être entièrement adapté à vos besoins et aux exigences du marché. De la capacité à l’espace de l’atelier en passant par le nombre de silos, chaque élément peut être ajusté pour maximiser la productivité, réduire les coûts et garantir une qualité d’engrais constante.



